Дом из бревна "Зевс"

Номер объявления:
 
61396
Пользователь:
 
Телефон:
 
+74951289858
Почта:
 
info@domaall.ru
Цена:
 
5219750.00 руб.

Описание

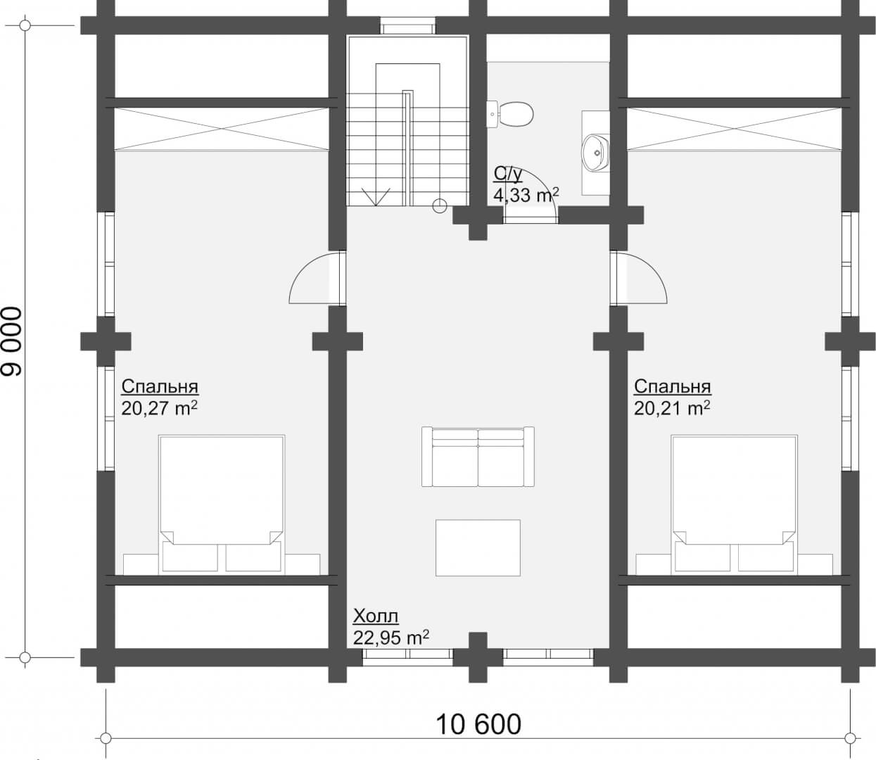
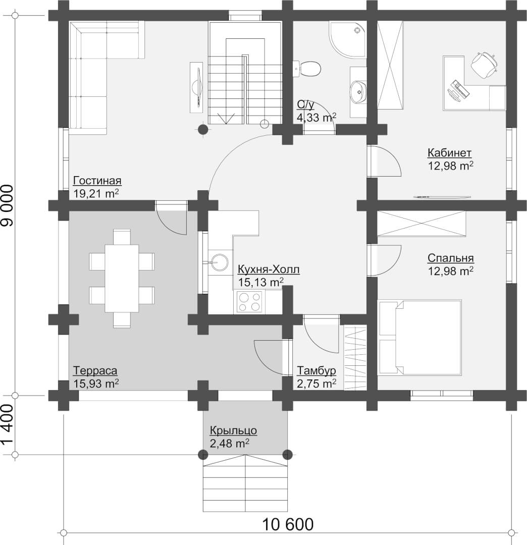
Дом по проекту «Зевс» выполнен из оцилиндрованного бревна. Диаметр 200 мм. Возможны варианты из бревна диаметром 200, 220, 240, 260, 280, 300 мм. Проектом предусмотрена просторная терраса, объединенная кухня-гостиная, на втором этаже холл можно будет переделать под дополнительную спальню или «второй свет»

Площадь: 153,5 м2

Размеры: 10400*10600 мм

Количество этажей: 1 этаж

В стоимость входит: фундамент на железобетонных сваях, обвязка из бруса 200х200 мм, лаги пола 100х200 мм, стеновой комплект с монтажом из оцилиндрованного бревна диаметром 200 мм, крыша с покрытием из металлочерепицы

 

 

Контакты

Адрес
ул. Намёткина, дом 14, корп. 1, эт.5, пом.1, каб.504 Москва
Веб-сайт
Дата размещения
11 апреля 2024, 17:33
(актуально до )
Последнее обновление 31.01.2026 г., количество просмотров: 35 Сообщить об ошибке

Оставить отзыв

Чтобы оставить отзыв, требуется .
Ваши впечатления
Допустимые типы: png gif jpg jpeg webp.
Войдите, чтобы оставить отзыв